We can't find the internet
Attempting to reconnect
Something went wrong!
Attempting to reconnect
650.000 €
19 de noviembre de 2025Chalet adosado en calle de Alejandro Malaspina, 1
Características
- aire acondicionado
- buhardilla
- jardin
- calefaccion
- parking
- piscina
- trastero
Descripción
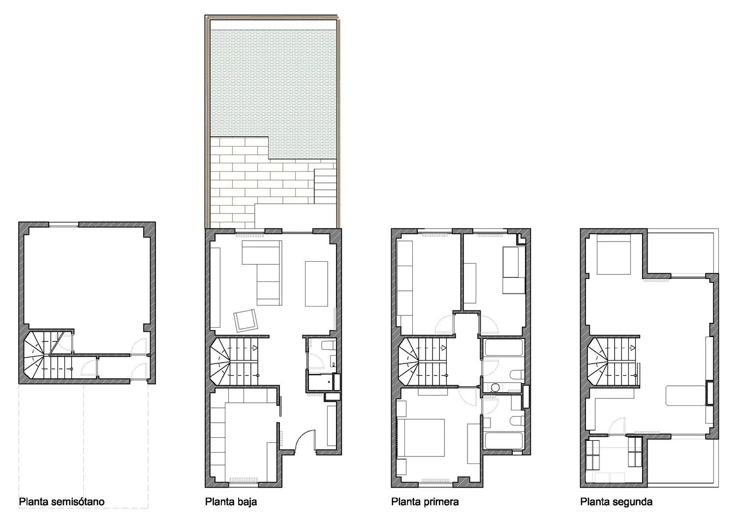
Se ofrece a la venta una casa unifamiliar en la tranquila zona residencial de La Garena, en Alcalá de Henares. Esta propiedad está convenientemente ubicada cerca de servicios esenciales como colegios, zonas verdes, estación de tren, tiendas y restaurantes. La vivienda se distribuye en cuatro niveles: la planta baja incluye un recibidor, una cocina equipada, un baño con ducha y un amplio salón-comedor con acceso directo a un jardín privado, cuyo césped artificial fue renovado en 2024. La primera planta alberga el dormitorio principal con baño en suite, dos dormitorios adicionales y otro baño completo. La buhardilla, un espacio diáfano de 30 m2, se utiliza actualmente como oficina y habitación de invitados, con área de almacenamiento, y ofrece potencial para futuras reformas. El semisótano de 55 m2 funciona como despensa y zona de planchado, con acceso directo a un garaje con capacidad para dos vehículos. La casa cuenta con calefacción individual de gas natural (instalada en 2019) y aire acondicionado por conductos Daikin con bomba de calor en las dos primeras plantas, además de un split en la buhardilla (también de 2019). Las ventanas de los dormitorios fueron reemplazadas recientemente (en 2025) por modelos oscilobatientes de PVC con triple acristalamiento y mosquiteras, mejorando la eficiencia energética. La propiedad se entrega con la cocina y los baños completamente amueblados y equipados, además de muebles grandes como el del salón, el vestidor y los de la buhardilla. La urbanización dispone de zonas verdes y una piscina comunitaria. Es una vivienda luminosa, confortable y bien mantenida, ideal para familias que buscan amplitud, tranquilidad y una excelente ubicación.
Reportar un problema
Ayúdanos a crear un espacio seguro. Cuéntanos qué sucede con este anuncio.