We can't find the internet
Attempting to reconnect
Something went wrong!
Attempting to reconnect
330.000 €
6 de marzo de 2026Piso en calle Skandia, 4
Características
- aire acondicionado
- calefaccion
- ascensor
Descripción
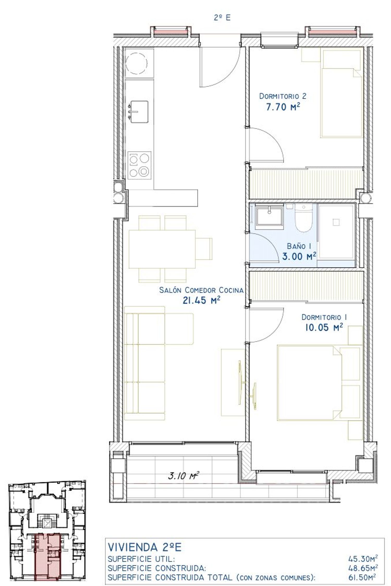
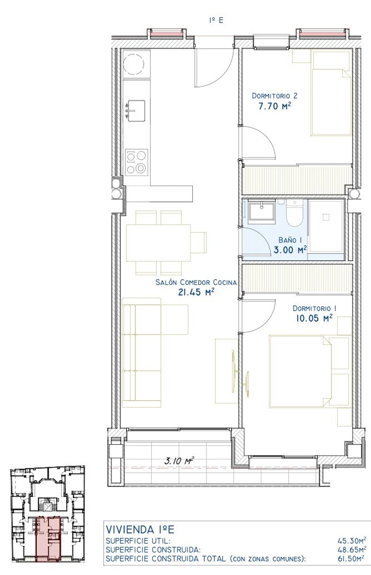
Descubre un moderno apartamento a estrenar, ubicado en una zona privilegiada. Este hogar cuenta con dos habitaciones luminosas y un baño completo con sanitarios Roca. La cocina está equipada con muebles laminados lacados y una encimera de cuarzo compacto. El edificio, finalizado en marzo de 2026, ofrece una construcción robusta con aislamiento de lana de roca y carpintería exterior de aluminio lacado en negro con doble acristalamiento Climalit, asegurando eficiencia térmica y acústica. Dispone de armarios empotrados, suelos de gres porcelánico y paredes lisas. Para tu confort, incluye calefacción eléctrica y aire acondicionado. Las ventanas orientadas al norte y oeste garantizan abundante luz natural. Además, es accesible para personas con movilidad reducida y se encuentra a 500 metros de la playa y 250 metros de la estación de tren de Los Boliches. Situado en la planta 2, el edificio cuenta con ascensor y una instalación eléctrica moderna. Hay dos opciones disponibles: Piso 1E por 310.000 € y Piso 2E por 330.000 €.
Reportar un problema
Ayúdanos a crear un espacio seguro. Cuéntanos qué sucede con este anuncio.