We can't find the internet
Attempting to reconnect
Something went wrong!
Attempting to reconnect
245.000 €
2 de febrero de 2026Piso en calle de Bolivia, 9
Características
- balcon
- ascensor
Descripción
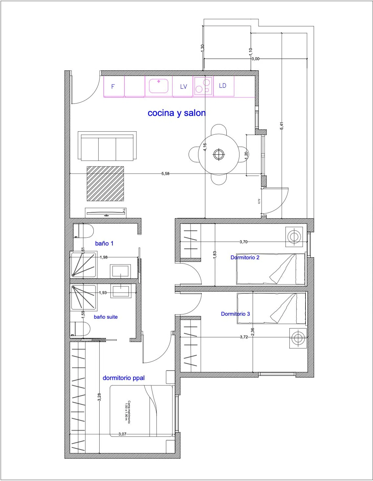
Se ofrece una propiedad con gran potencial para ser transformada, ideal tanto para aquellos que deseen diseñar su hogar a medida como para inversores. El anuncio incluye visualizaciones y planos conceptuales que ilustran una posible distribución moderna y funcional, con la opción de crear tres dormitorios y dos baños completos (actualmente uno), además de un salón espacioso y una cocina americana muy luminosa con acceso a un balcón. La vivienda se beneficia de abundante luz natural y está situada en una zona tranquila de Fuenlabrada, rodeada de zonas verdes, chalets, colegios y servicios familiares, lo que la convierte en un entorno perfecto para una buena calidad de vida con excelentes conexiones. Se encuentra a solo dos minutos a pie de la estación Parque de los Estados. Es importante destacar que la propiedad se vende en su estado actual, sin reformas realizadas, y las imágenes y planos son solo propuestas orientativas.
Otros pisos en venta similares en Fuenlabrada
Reportar un problema
Ayúdanos a crear un espacio seguro. Cuéntanos qué sucede con este anuncio.