We can't find the internet
Attempting to reconnect
Something went wrong!
Attempting to reconnect
1.795.000 €
21 de septiembre de 2025Casa independiente en calle de Antonio Díaz-Cañabate, 13
Características
- parking
- trastero
- terraza
Descripción
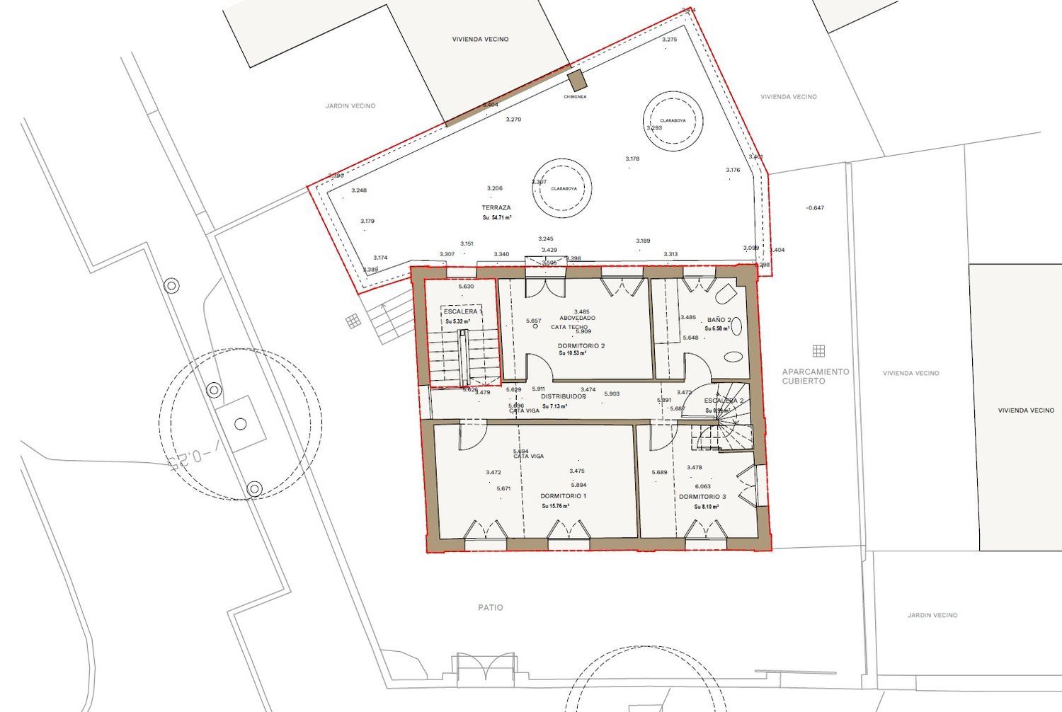
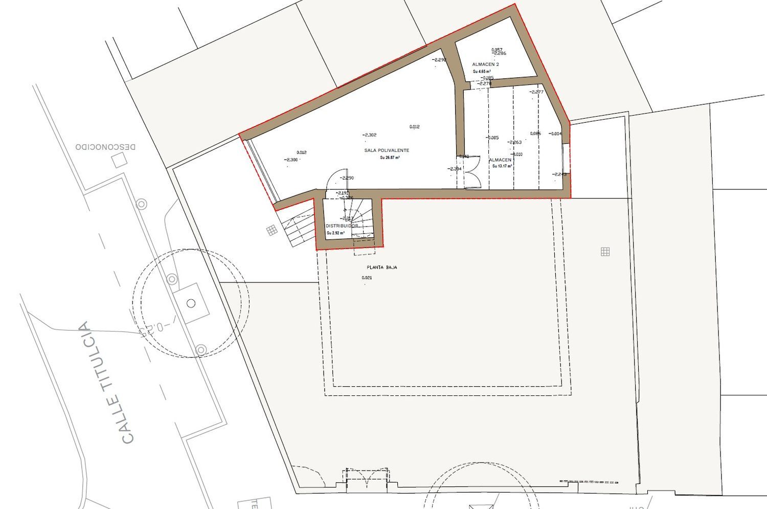
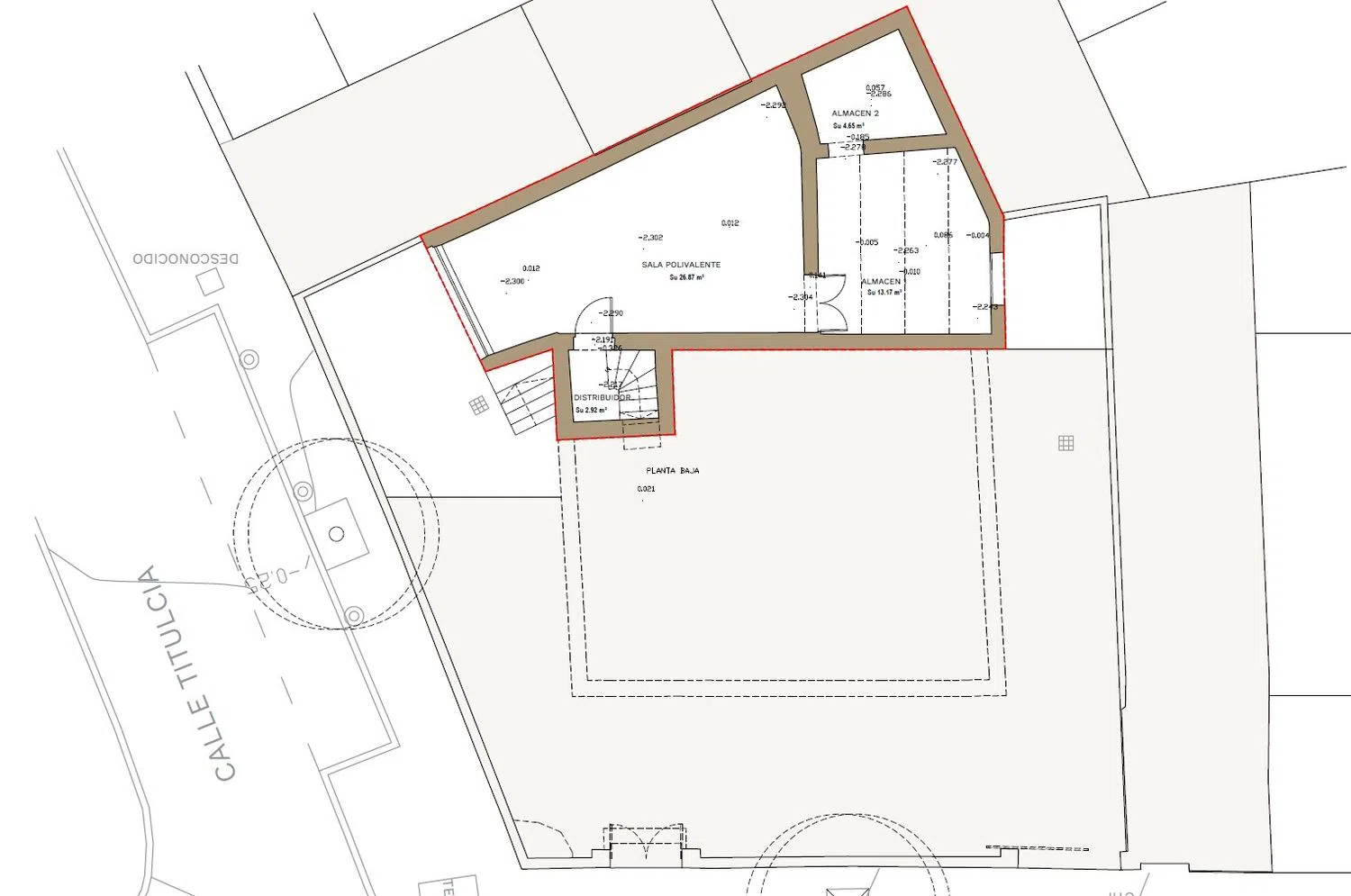
Se ofrece un impresionante chalet en esquina, ideal para una reforma integral, que cuenta con un gran potencial y un volumen legalmente establecido. Ubicado muy cerca del Parque del Retiro, esta propiedad de cuatro niveles presenta una estructura en óptimas condiciones y su volumen está consolidado según la normativa urbanística de Madrid. La vivienda se vende para ser reformada, y se incluyen diseños de una posible renovación que optimiza su distribución y su excelente localización. La licencia de obra ya ha sido aprobada y las obras están a punto de comenzar, lo que implicará un aumento del precio a medida que avance la remodelación. Representa una oportunidad única para adquirir una propiedad exclusiva en una de las áreas más cotizadas de la capital, con la opción de adaptar el diseño final o seguir con el plan de reforma propuesto. Disfruta de áreas al aire libre, abundante luz natural, un ambiente sereno y todos los beneficios de residir junto al Retiro, con fácil acceso a los servicios del centro de Madrid.
Otros barrios en Retiro, Madrid
Reportar un problema
Ayúdanos a crear un espacio seguro. Cuéntanos qué sucede con este anuncio.