We can't find the internet
Attempting to reconnect
Something went wrong!
Attempting to reconnect
340.000 €
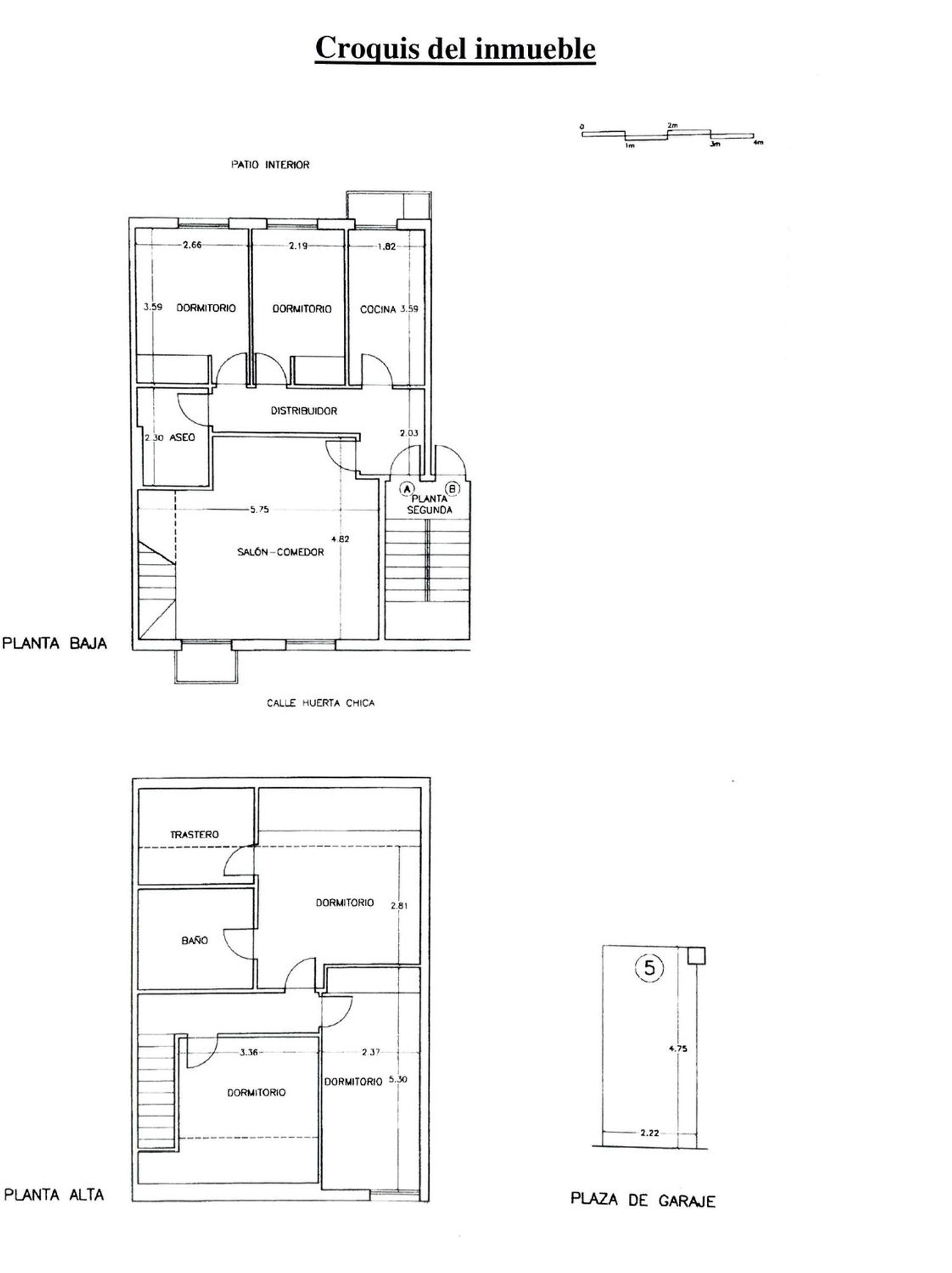
18 de diciembre de 2025Dúplex en calle de la Huerta Chica, 7 Na
Características
- aire acondicionado
- calefaccion
- parking
- trastero
- terraza
Descripción
Se vende un luminoso dúplex en San Fernando de Henares, estratégicamente ubicado cerca de la Plaza de España y a solo 200 metros de la estación de metro de San Fernando. La zona cuenta con excelentes conexiones de autobús interurbano y está rodeada de servicios esenciales como el colegio CEIP Jarama, el Centro de Salud Los Alperchines, y varios supermercados (Día, Ahorra Más, Alcampo), además del Mercado Comercial Valencia. La propiedad se beneficia de su proximidad a parques infantiles y plazas ajardinadas. Incluye una silla elevadora en la escalera para facilitar el acceso a personas con movilidad reducida. Dispone de un amplio salón de 25 m2, calefacción por suelo radiante y aire acondicionado con bomba de calor en las habitaciones superiores y el salón. La planta baja cuenta con cinco toldos. Se ofrece una plaza de garaje de 10,5 m2 útiles (24,67 m2 construidos) que se vende por separado. Los gastos de comunidad son de 38€/mes para la vivienda y 66€/trimestre para el garaje (equivalente a 60€/mes). Se recomienda encarecidamente visitarlo.
Otros pisos en venta similares en San Fernando de Henares
Reportar un problema
Ayúdanos a crear un espacio seguro. Cuéntanos qué sucede con este anuncio.