We can't find the internet
Attempting to reconnect
Something went wrong!
Attempting to reconnect
1.400 € / MES
hace 17 horasPiso en calle de l'Espaseria, 21
Características
- aire acondicionado
Descripción
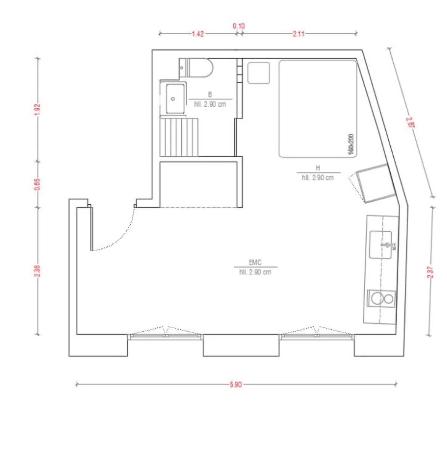
Este tranquilo y céntrico alojamiento, ideal para una persona o una pareja, se encuentra disponible de inmediato en el corazón del centro histórico, muy cerca de la playa de la Barceloneta. Está situado en el barrio del Born, junto a la Catedral de Santa María del Mar, y a pocos minutos a pie de la playa, rodeado de una gran variedad de bares y restaurantes. Se ofrece un contrato de alquiler de temporada con una duración mínima de dos meses. Se requiere un mes de fianza, los suministros corren por cuenta del inquilino y hay un cargo de 100 euros por limpieza final.
Otros pisos en alquiler similares en Barcelona
Otros barrios en Ciutat Vella, Barcelona
Reportar un problema
Ayúdanos a crear un espacio seguro. Cuéntanos qué sucede con este anuncio.