We can't find the internet
Attempting to reconnect
Something went wrong!
Attempting to reconnect
3.200 € / MES
9 de abril de 2026Chalet adosado en calle del Océano Ártico, 23
Características
- aire acondicionado
- balcon
- nevera
- jardin
- calefaccion
- parking
- trastero
- terraza
Descripción
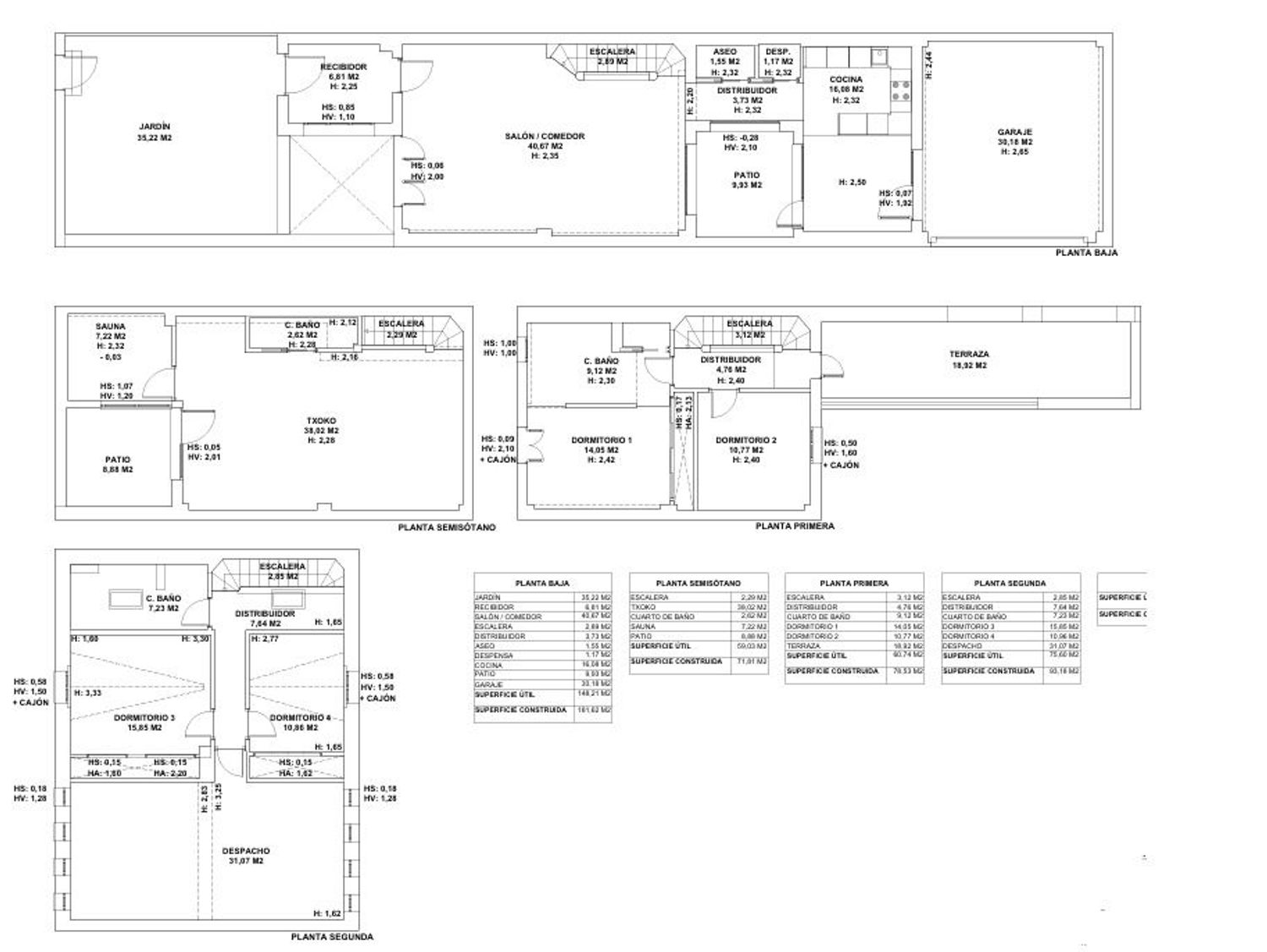
Esta espaciosa vivienda unifamiliar de cuatro plantas se encuentra en Tres Cantos, cerca de la Avenida de Viñuelas, ofreciendo excelentes conexiones. La propiedad destaca por su diseño funcional y la calidad de sus acabados. En el sótano, dispone de una zona de estar, barra con nevera, lavandería, sauna, baño completo y acceso a un patio inferior que conecta con el jardín delantero, además de espacio de almacenamiento. La planta baja incluye un salón-comedor luminoso, una cocina totalmente equipada con opciones eléctricas y de gas, despensa, un aseo, jardín frontal, patio interior ideal para comer al aire libre y garaje. La primera planta alberga una suite principal, una habitación doble para invitados y un balcón. La segunda planta cuenta con dos habitaciones dobles, un despacho-biblioteca con área de estar adicional y un baño completo. Todas las estancias tienen armarios empotrados. La casa incorpora suelo radiante y refrescante, junto con carpintería exterior Cortizo de triple acristalamiento para un aislamiento óptimo. Su ubicación es estratégica, con acceso cercano a colegios, supermercados, zonas deportivas y áreas verdes, siendo ideal para familias que buscan confort y una buena ubicación.
Reportar un problema
Ayúdanos a crear un espacio seguro. Cuéntanos qué sucede con este anuncio.