Reconnecting
Reconnecting
730.000 €
31 de marzo de 2026Casa adosada en Carrer del Rector 31
Kelify Insights
Lo que los demás no te quieren contar.
Características
- Buen estado IA
- Amueblado
- Balcón
- Terraza
Equipamiento
- Aire acondicionado
- Calefacción
- Parking
- Lavavajillas
- Trastero
Descripción
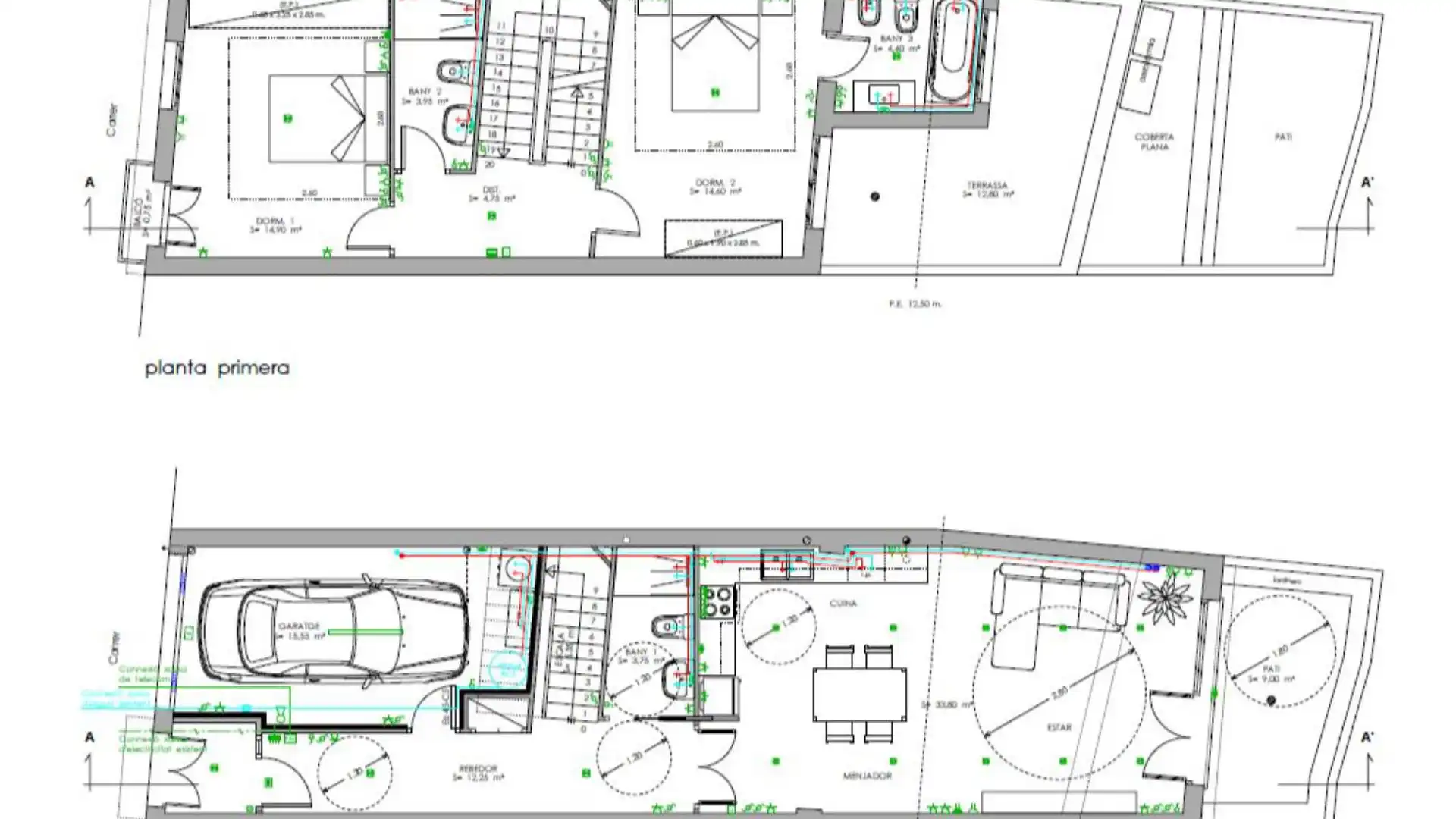
Esta vivienda, completamente renovada, se encuentra en el corazón de Badalona, ofreciendo una ubicación privilegiada a solo diez minutos a pie de la playa y a cinco del ayuntamiento. La propiedad fue objeto de una reforma integral hace cinco años, abarcando habitaciones, baños, cocina y terrazas, utilizando materiales de alta calidad. Dispone de tres dormitorios amplios, tres baños completos, un estacionamiento privado con espacio de almacenamiento elevado y tres áreas de terraza. El salón-comedor es espacioso y luminoso. La casa cuenta con aire acondicionado en todas las estancias y un sistema de aerotermia con suelo radiante, lo que asegura eficiencia energética y confort durante todo el año, sin depender de gas. Además, incluye una zona de barbacoa en una de las terrazas. La distribución incluye en la planta baja accesos independientes a la vivienda y al parking, un baño y el salón-comedor con salida a un patio interior. La primera planta alberga un dormitorio principal con baño privado y vestidor, otro dormitorio y un baño completo. La segunda planta ofrece una amplia terraza privada dividida en dos zonas, una con barbacoa y otra cubierta con potencial para convertirse en una habitación adicional. Es una oportunidad única para vivir cerca del mar en una casa moderna y lista para habitar.
Reportar un error en este anuncio
Este formulario es solo para errores del anuncio (precio, fotos, contacto, etc.). No se envía al propietario — para contactar, usa el teléfono o WhatsApp del anuncio.