We can't find the internet
Attempting to reconnect
Something went wrong!
Attempting to reconnect
620.000 €
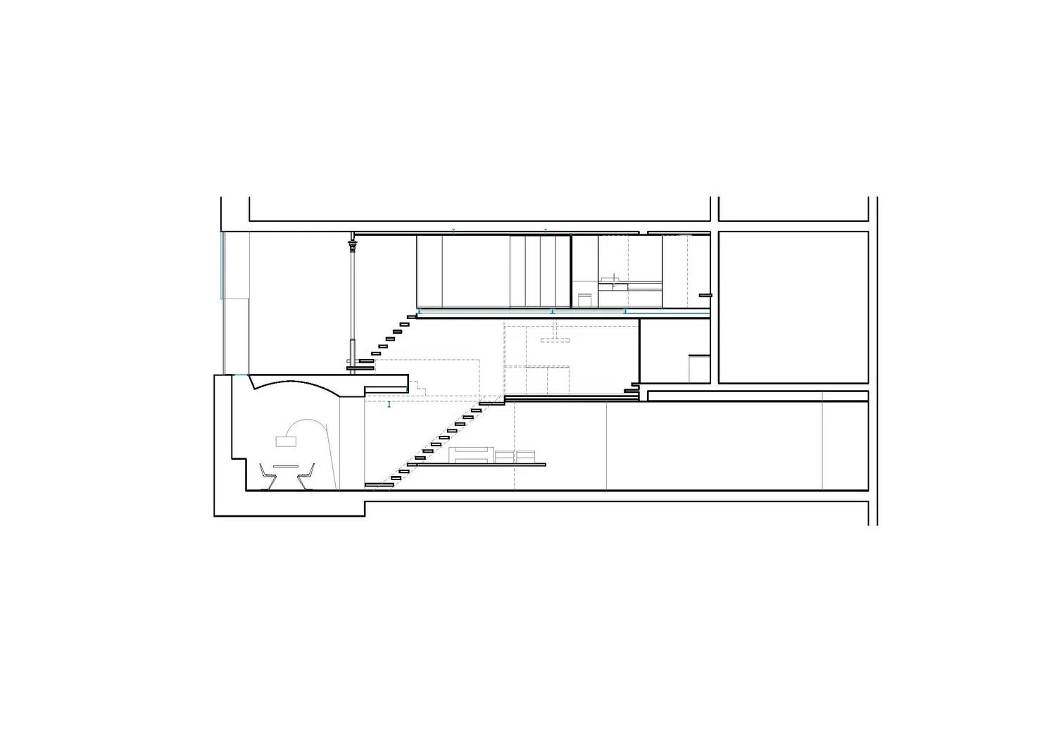
4 de diciembre de 2025Dúplex en calle de El Escorial, 2
Características
- aire acondicionado
- trastero
Descripción
Se ofrece un singular loft triplex de tres niveles, anteriormente una carpintería, situado en una calle apacible en un céntrico y animado barrio. Cuenta con entrada directa desde la calle, lo que lo hace ideal para arrendamientos turísticos. Su diseño moderno, obra de arquitectos, incluye una sala de estar con doble altura y dos habitaciones en el sótano que dan a un patio interior, garantizando tranquilidad. La propiedad destaca por sus mínimos gastos de comunidad y la independencia de cada planta, siendo una opción atractiva para alquiler vacacional.
Otros pisos en venta similares en Madrid
Otros barrios en Centro, Madrid
Reportar un problema
Ayúdanos a crear un espacio seguro. Cuéntanos qué sucede con este anuncio.