We can't find the internet
Attempting to reconnect
Something went wrong!
Attempting to reconnect
1.060 € / MES
16 de diciembre de 2025Piso en Barrio San Diego
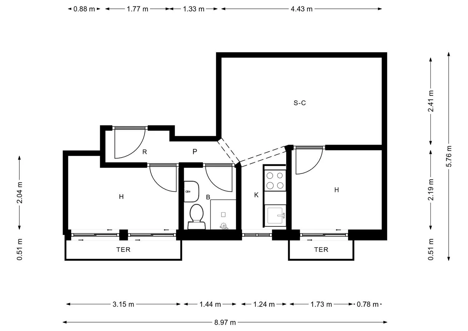
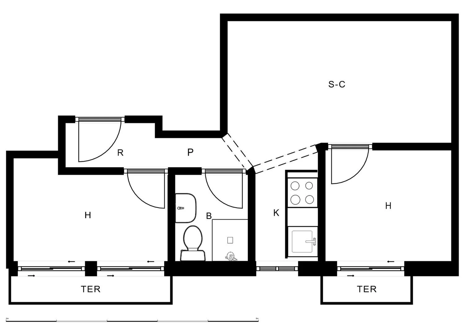
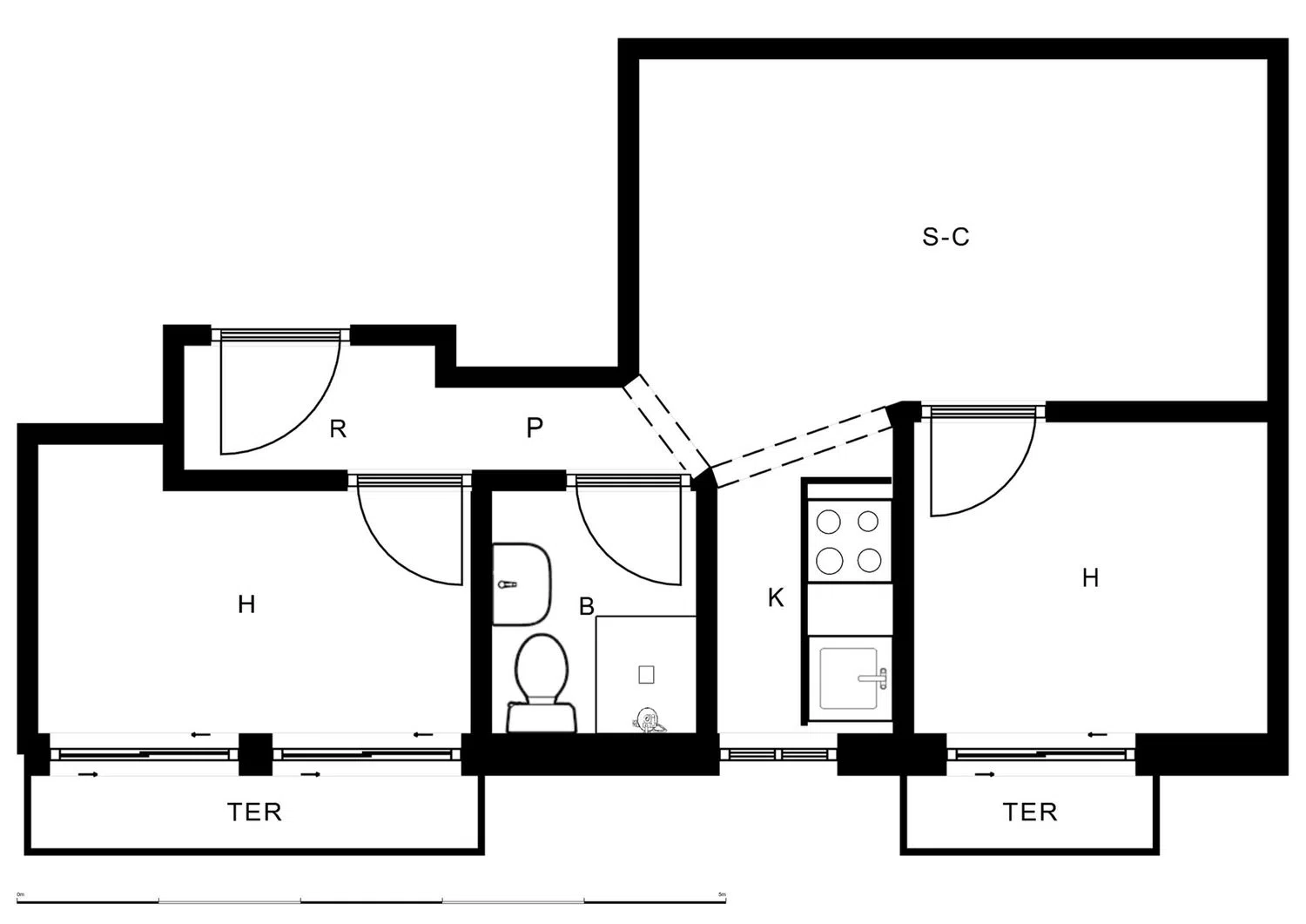
Características
- horno
- terraza
Descripción
Se ofrece en alquiler una vivienda de dos dormitorios y un baño, situada en la primera planta de un edificio sin ascensor en el distrito de Puente de Vallecas, específicamente en San Diego. La distribución interior incluye un salón-comedor con acceso directo a una terraza, una cocina independiente que se entrega amueblada y equipada con horno, y un baño completo. Los suelos son de gres en cocina y baño, y de tarima en el resto de las estancias. La propiedad goza de una excelente ubicación con fácil acceso a transporte público, incluyendo paradas de metro y autobús cercanas, y está rodeada de servicios esenciales como centros de salud, farmacias, colegios y una variada oferta de ocio con gimnasios y parques. La gestión del alquiler se realiza sin comisión de agencia.
Otros barrios en Puente de Vallecas, Madrid
Reportar un problema
Ayúdanos a crear un espacio seguro. Cuéntanos qué sucede con este anuncio.